5230 44 Avenue
Offered at: $999,900
MLS®: A2300850
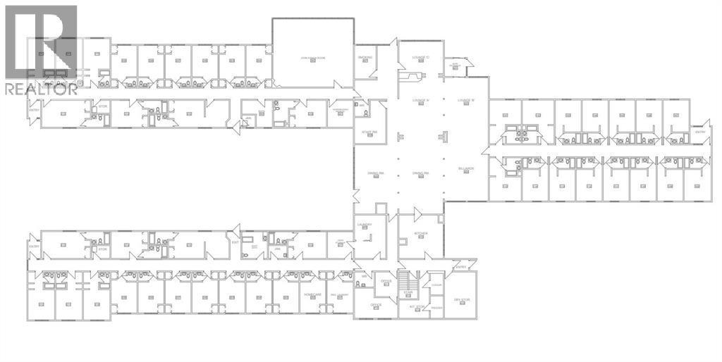
Pleasant View Lodge in Spirit River, Alberta presents a rare opportunity to acquire a well-maintained, institutional-quality 42-suite care facility situated on 2.32 acres of R4 High Density Residential land priced at only $45/sqft!. Encompassing 22,177 sq. ft., the building has seen extensive upgrades including boilers (2015), hot water tanks (2022/2023), a torch-on roof (2018), and modern double-glazed vinyl windows, offering a solid, low-risk asset base. Now vacant and ready for immediate occupancy or repositioning, the property features private bathrooms in every suite (26 with full tubs or showers), along with a commercial kitchen, expansive common areas, assisted bathing rooms, staff facilities, office space, commercial laundry, a hair salon, and a 26’ x 40’ maintenance shop. With ample parking, mature landscaping, and a quiet setting near parks and services just 50 minutes from Grande Prairie, this flexible property is ideally suited for seniors housing, assisted living, specialized care, workforce accommodation, or multi-family conversion. (id:6769)
Quick Stats
Key Home Data
0
BATH(S)
BED(S)
22177
SQFT
YES
SHOWING AVAILABLE
Property Type:
Multi-family
Payment Calculator
Calculate your monthly mortgage payment.
Mortgage Amount
$
Amortization
years
Payment Freq.
Interest Rate
%
Calculating...
All About the Details
See specific details below.
Neighbourhood Statistics
Get to know your neighbourhood.


Royal LePage Kamloops Realty