1685 Rutland Road North
Offered at: $6,800,000
MLS®: 10373814
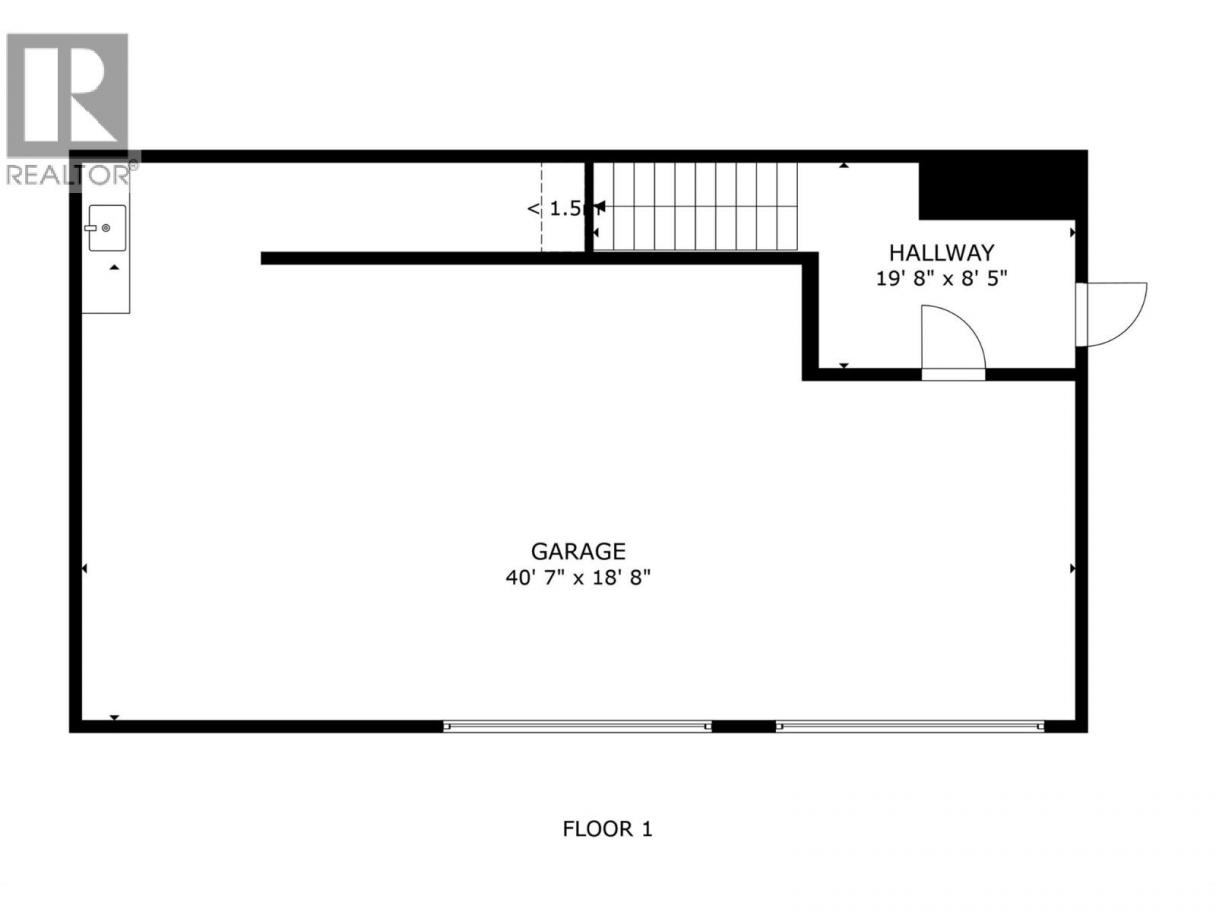
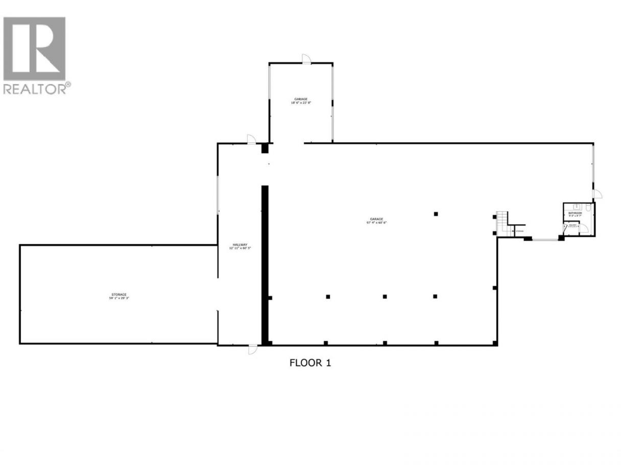
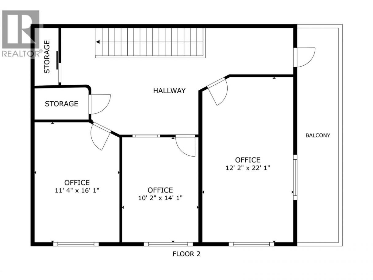
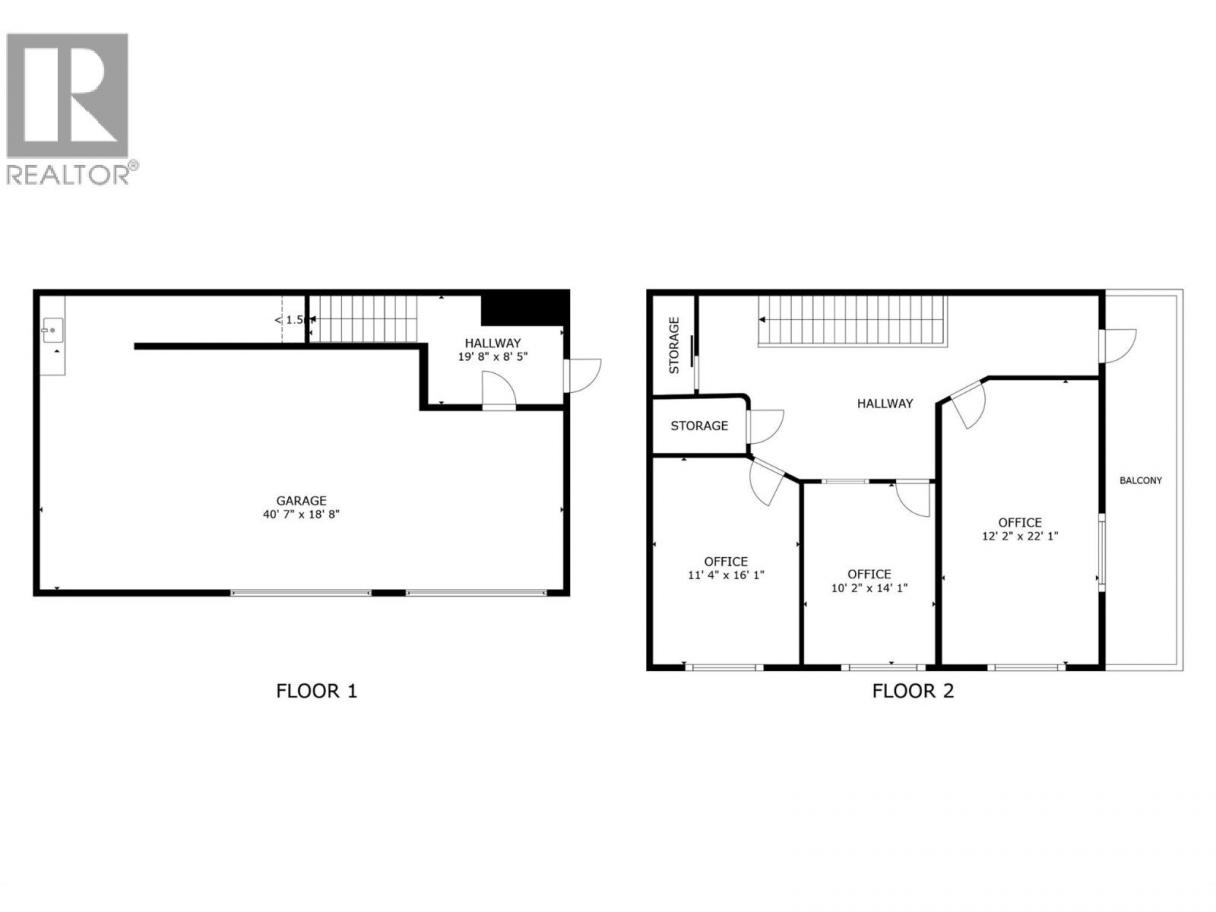
Rare turnkey ALR agribusiness opportunity on a high-visibility Rutland corridor. This 5.5-acre property offers a unique combination of producing orchard land, two residences, and extensive fruit packing and cold-storage infrastructure. Approximately 2.5 acres are planted in Gala apples, with three additional rows of mixed apple varieties, one row of grapes, and five rows of prune plum trees. The land is level, fully irrigated, fenced, and highly usable, with a secondary side-road entrance providing excellent truck access and operational efficiency. The property includes two detached 3-bedroom, 1-bathroom homes, ideal for owner occupancy, staff housing, or rental income. A major highlight is the 17,816 sq. ft. steel-frame processing and warehouse facility with 600-amp electrical service, offices, staff areas, mezzanine storage, two loading docks with bay doors, and ample on-site parking. The facility features six cold-storage rooms, including three controlled-atmosphere (CA) rooms with capacity for approximately 1,850 apple bins and three conventional coolers with capacity for approximately 1,200 bins, for a total storage capacity of approximately 3,000 bins. A fully equipped apple grading and packing line is included, along with approximately 2,000 wood apple bins and supporting equipment. Backing onto a residential neighbourhood, this is a rare opportunity to acquire a turnkey agricultural processing and storage operation in a prime Kelowna location. (id:6769)
Quick Stats
Key Home Data
0
BATH(S)
BED(S)
17816
SQFT
YES
SHOWING AVAILABLE
Property Type:
Industrial
Payment Calculator
Calculate your monthly mortgage payment.
Mortgage Amount
$
Amortization
years
Payment Freq.
Interest Rate
%
Calculating...
All About the Details
See specific details below.
Neighbourhood Statistics
Get to know your neighbourhood.


Royal LePage Kamloops Realty