3301 Coldstream Avenue
Offered at: $1,890,000
MLS®: 10371807
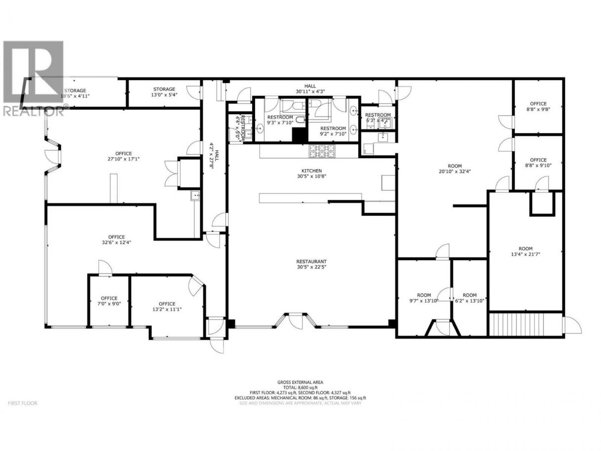
Positioned on a high-exposure corner in downtown Vernon’s city center, 3301 Coldstream Avenue offers an excellent mix of stable income, tenant diversity, and long-term upside. With total gross rents of $108,688, leases fully net to the landlord, and an implied cap rate at 5.75% this two-story concrete-block building totals approximately 8,804 sq ft and is configured with four main-floor commercial units and three second-floor office areas. The property has seen extensive upgrades in recent years—including interior and exterior paint, flooring, new drywall ceilings, spray foam insulation in the attic, updated electrical and HVAC (3 new units on the roof), roll shutters, improved signage, window film, awnings, and a security/camera system. The building boasts 600-amp 3-phase power and every unit has their own hydro meter. Most tenancies operate on a net basis with annual rent escalations. With CMUC mixed-use zoning allowing a broad range of commercial opportunities this is a compelling downtown Vernon investment for buyers seeking cash flow today and future redevelopment potential. (id:6769)
Quick Stats
Key Home Data
0
BATH(S)
BED(S)
8804
SQFT
YES
SHOWING AVAILABLE
Property Type:
Business Home Ownership:
Freehold
Payment Calculator
Calculate your monthly mortgage payment.
Mortgage Amount
$
Amortization
years
Payment Freq.
Interest Rate
%
Calculating...
All About the Details
See specific details below.
Neighbourhood Statistics
Get to know your neighbourhood.


Royal LePage Kamloops Realty