5230 44 Avenue
Offered at: $999,900
MLS®: A2273553
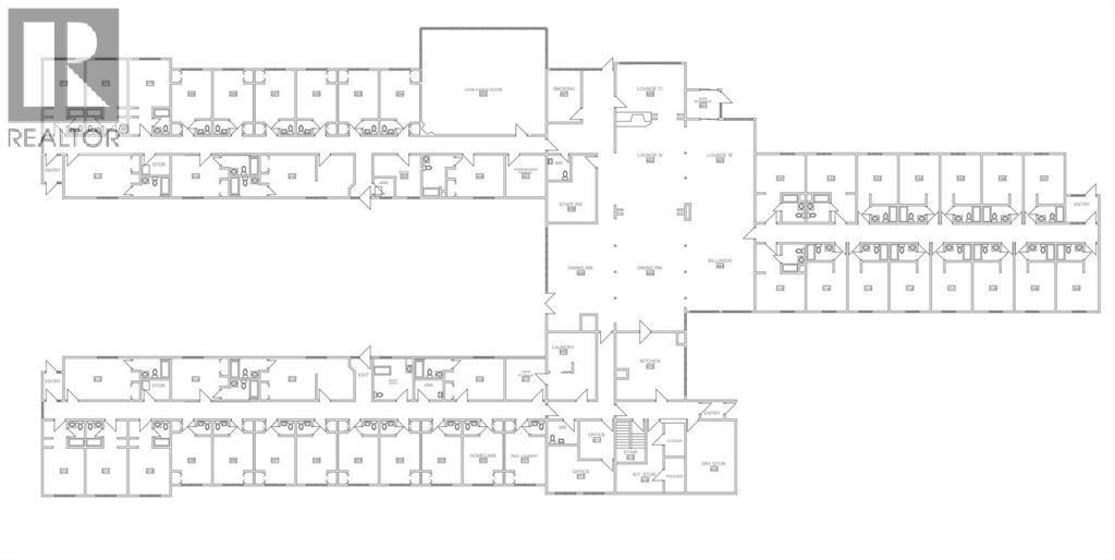
Pleasant View Lodge in Spirit River, Alberta, presents an exceptional opportunity for investors and assisted-living operators to acquire a well-maintained, institutional-quality 42-suite care facility situated on 2.32 acres of R4 High Density Residential land. This 22,177 sq. ft. building has been consistently upgraded, including newer boilers (2015), hot water tanks (2022/2023), modern double-glazed vinyl windows, and a torch-on roof completed in 2018. Now vacant and ready for redevelopment or immediate occupancy, the property features private bathrooms in every suite—26 with full showers or tubs—plus two staff washrooms, two assisted bathing rooms, a commercial kitchen with industrial equipment, extensive common areas, commercial laundry, office space, a dedicated hair salon, and a 26’x40’ maintenance shop. With ample parking, mature trees, and a peaceful setting near parks and services, and located just 50 minutes from Grande Prairie with direct access to essential amenities, this property offers exceptional potential for seniors housing, specialized care, workforce accommodation, or multi-suite residential conversion. (id:6769)
Quick Stats
Key Home Data
0
BATH(S)
BED(S)
22177
SQFT
YES
SHOWING AVAILABLE
Property Type:
Multi-family
Payment Calculator
Calculate your monthly mortgage payment.
Mortgage Amount
$
Amortization
years
Payment Freq.
Interest Rate
%
Calculating...
All About the Details
See specific details below.
Neighbourhood Statistics
Get to know your neighbourhood.


Royal LePage Kamloops Realty