5201 26 Street
Offered at: $2,495,000
MLS®: 10361718
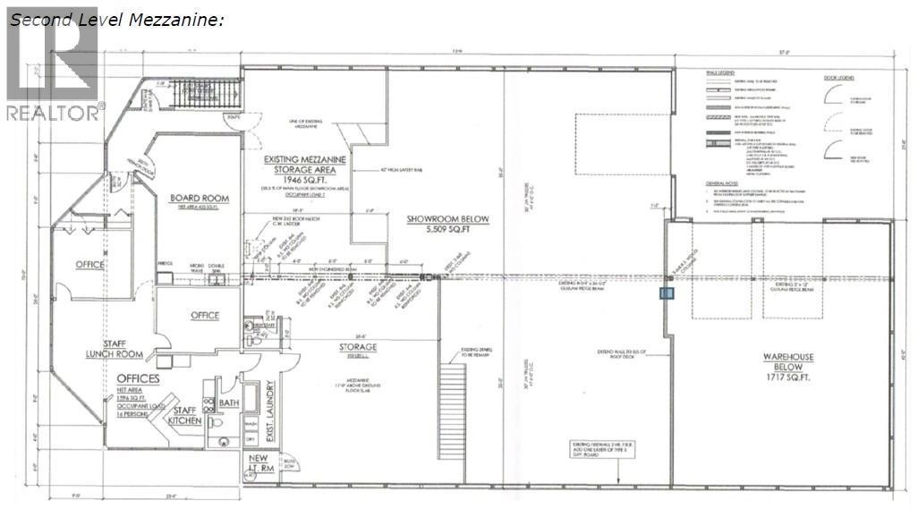
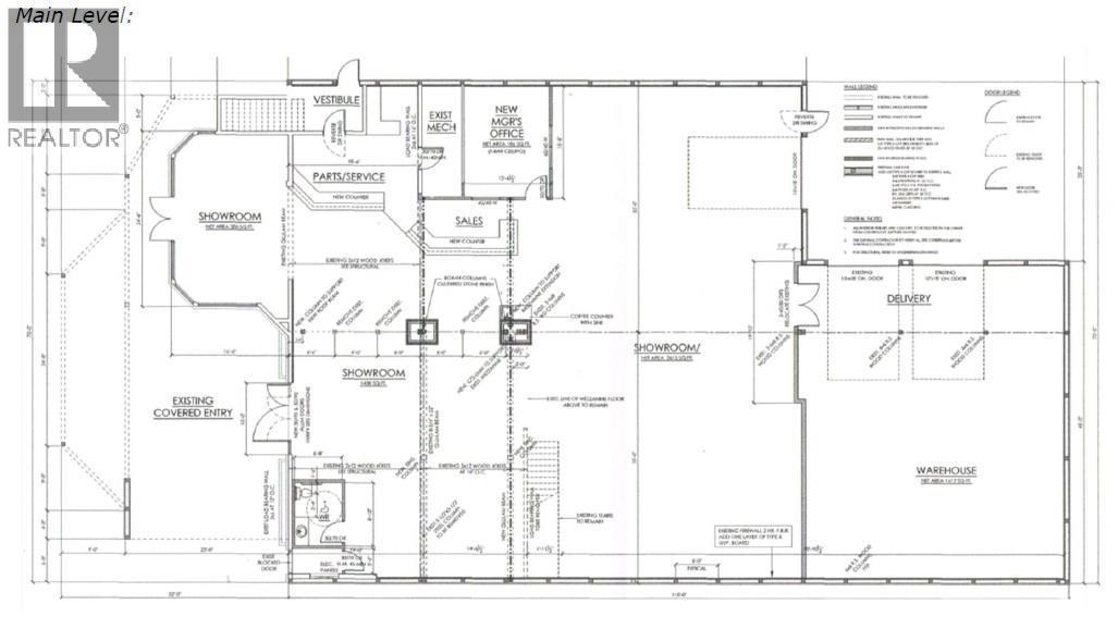
Currently running a 9.4% CAP! Prime commercial opportunity in a highly visible location at the north end of Vernon, right on one of the city’s main commercial routes. This property offers exceptional exposure and easy accessibility, making it ideal for a wide range of businesses. The building features a spacious main floor layout with a massive warehouse area, perfectly suited for storage, distribution, or light industrial use. In addition, the property includes retail spaces on the main level, providing the flexibility to operate a storefront, showroom, or customer-facing business alongside warehouse operations. A rare chance to secure a versatile commercial property in a strategic, high-traffic location. (id:6769)
Quick Stats
Key Home Data
0
BATH(S)
BED(S)
10818
SQFT
YES
SHOWING AVAILABLE
Property Type:
Industrial
Payment Calculator
Calculate your monthly mortgage payment.
Mortgage Amount
$
Amortization
years
Payment Freq.
Interest Rate
%
Calculating...
All About the Details
See specific details below.
Neighbourhood Statistics
Get to know your neighbourhood.


Royal LePage Kamloops Realty