3915 Trepanier Heights Avenue
Offered at: $988,000
MLS®: 10383092
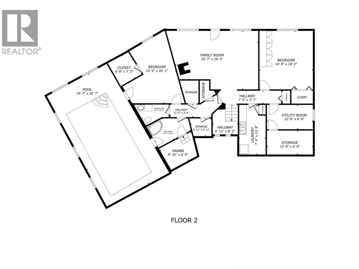
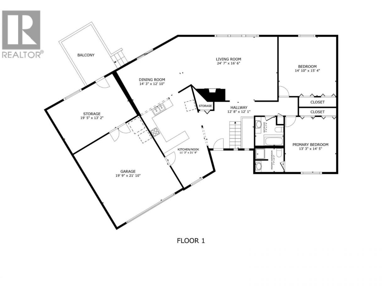
Here is your chance to enjoy panoramic lake and mountain views, a large private-feeling lot, and a welcoming Peachland neighbourhood. This 4 bedroom, 3 bathroom home offers approximately 3,700 sq. ft. on 0.35 acres, with a flat backyard, fruit trees, a park behind, and wildlife often seen right outside. Inside, the home has great presence, with ceilings vaulted up to 15 feet in the main living areas, beautiful wood finishes, and exceptional Euroline steel windows and sliding doors throughout. You can move in and enjoy it now, then update at your own pace to make the most of its unique potential. There is a double garage with a large storage area behind it, which can also be used for living space. There is also plenty of storage area downstairs, plus a large sauna for your relaxation. Steel shutters help keep the home cooler in summer and offer added security when travelling. The indoor pool may be useable, but it has been drained for many years and is being sold as is, where is. The pool area is not included in the square footage. From this location, you are only 3-5 minutes from downtown Peachland’s beaches, boat launches, restaurants, and groceries, and about 10 minutes from West Kelowna shopping. Downtown Kelowna is 20-25 minutes away. Don't wait! Make arrangements to view this home today! Pre-listing home inspection available through your agent. (id:6769)
Quick Stats
Key Home Data
3
BATH(S)
4
BED(S)
3723
SQFT
YES
SHOWING AVAILABLE
Property Type:
Single Family Home Ownership:
Freehold
Payment Calculator
Calculate your monthly mortgage payment.
Mortgage Amount
$
Amortization
years
Payment Freq.
Interest Rate
%
Calculating...
All About the Details
See specific details below.
Neighbourhood Statistics
Get to know your neighbourhood.


Royal LePage Kamloops Realty