1601 37th Street
Offered at: $674,900
MLS®: 10379536
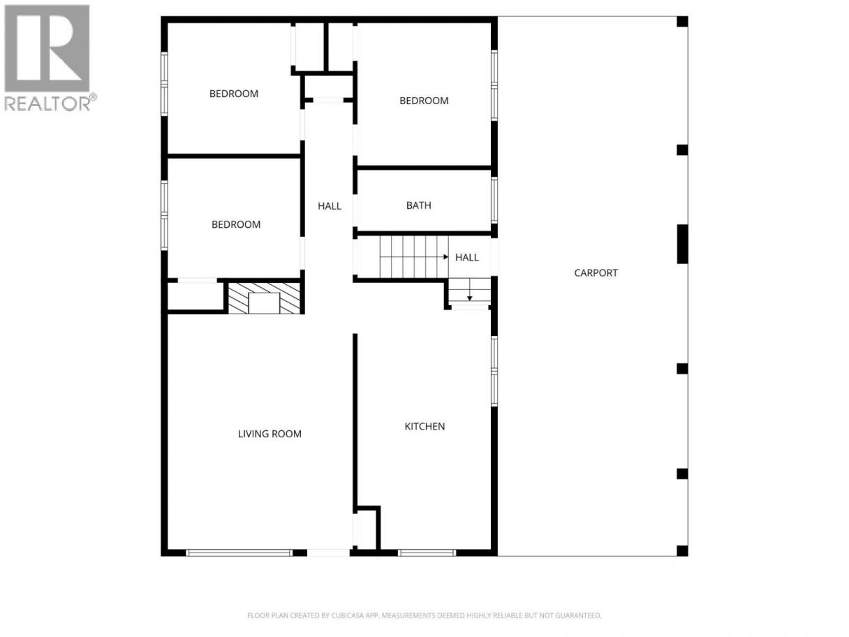
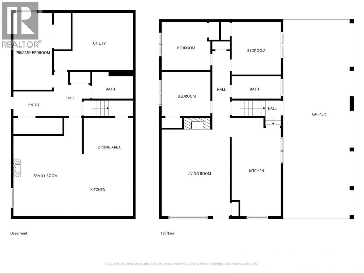
Welcome to this cozy and versatile home, located on a quiet no-through road in a family-friendly neighbourhood, just steps from Mission Hill Elementary School and Mission Hill park. This property is perfectly suited for families, multi-generational living, investors, or those seeking a mortgage helper. The bright and functional main floor features three bedrooms, a bathroom, kitchen, and living room with a gas fireplace, and a large window with a view toward The Rise and the rolling orchards and vineyards of Bella Vista. Downstairs, a fully self-contained one-bedroom, one-bathroom suite offers its own private entrance, separate driveway, and dedicated laundry—ideal for extended family, guests, or potential rental income. In 2016–17, the seller updated the suite, added a 200-amp panel, and completed extensive electrical, plumbing, window, and a gas fireplace upgrade. The AC and HWT were replaced in 2024. Car enthusiasts, hobbyists, or those needing extra parking will appreciate the extended 42-foot drive-through carport, providing access from the front or rear alley, a very practical feature. Step outside to the private fenced backyard with ample space for kids, pets, gardening, or even a trampoline, this outdoor area is ready to suit your lifestyle. With its unbeatable location, income potential, and unique features, this property offers a fantastic opportunity to enjoy the best that Vernon has to offer. Call to arrange your private showing! (id:6769)
Quick Stats
Key Home Data
2
BATH(S)
4
BED(S)
2078
SQFT
YES
SHOWING AVAILABLE
Property Type:
Single Family Home Ownership:
Freehold
Payment Calculator
Calculate your monthly mortgage payment.
Mortgage Amount
$
Amortization
years
Payment Freq.
Interest Rate
%
Calculating...
All About the Details
See specific details below.
Neighbourhood Statistics
Get to know your neighbourhood.


Royal LePage Kamloops Realty