#304 1607 43 Avenue
Offered at: $449,900
MLS®: 10377516
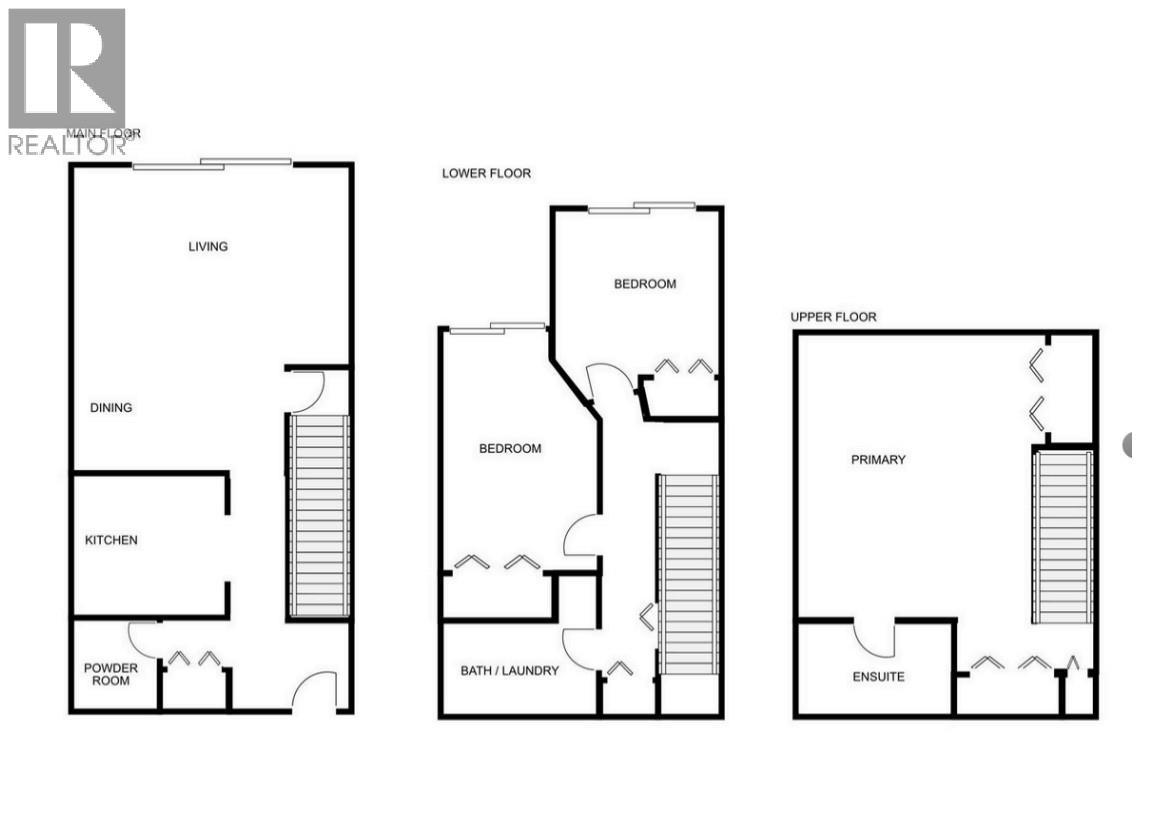
Very unique 3 bedroom, 3 bathroom floorplan. Main floor has kitchen with sit up breakfast bar that opens to Living room with a gas fireplace. Deck overlooks green space. 2 piece powder room. Large Primary bedroom on top level with a full ensuite.is completely on its own for privacy.. The lower level has 2 bedrooms that both lead out to patio. a full bathroom, laundry area and under stairs storage. Nice area and location on City bus route. 2 parking stalls. (id:6769)
Quick Stats
Key Home Data
3
BATH(S)
3
BED(S)
1284
SQFT
YES
SHOWING AVAILABLE
Property Type:
Single Family Home Ownership:
Strata
Payment Calculator
Calculate your monthly mortgage payment.
Mortgage Amount
$
Amortization
years
Payment Freq.
Interest Rate
%
Calculating...
All About the Details
See specific details below.
Neighbourhood Statistics
Get to know your neighbourhood.


Royal LePage Kamloops Realty