56 Grizzly Circle
Offered at: $678,900
MLS®: 17109
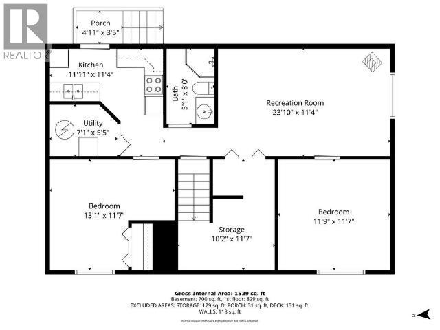
Four bedroom home with landscaped front and back yard and newer double concrete driveway. Nice size entry with closet and just a few steps up to open concept living area. Bright kitchen with raised panel cabinetry and island with eating bar. Dining area with garden door to 12'2 x 9 upper back deck overlooking lovely fenced backyard. Living room at front of home, two nice size bedrooms and full bath complete upper level. Finished basement with two more bedrooms, full bath, spacious family room with propane fireplace. Laundry room is large enough to accommodate a summer kitchen with sink, extra fridge and it's own private entrance making it a great property for B and B, extended guests or the in-laws. Home boasts a security system with 8-camera exterior security powered by ethernet. Garden area, greenhouse, and patio nestled off in back corner to take advantage of the sun. Look now as don't think this one will last long! (id:6769)
Quick Stats
Key Home Data
2
BATH(S)
4
BED(S)
1806
SQFT
YES
SHOWING AVAILABLE
Property Type:
Single Family
Payment Calculator
Calculate your monthly mortgage payment.
Mortgage Amount
$
Amortization
years
Payment Freq.
Interest Rate
%
Calculating...
All About the Details
See specific details below.
Neighbourhood Statistics
Get to know your neighbourhood.


Royal LePage Kamloops Realty