1572 Parkinson Road
Offered at: $987,000
MLS®: 10376287
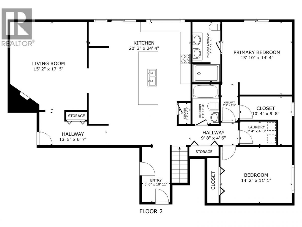
Opportunities abound in this 5-bedroom, 4-bath walkout rancher! Not only does it have a legal suite, it also has an 'office' that is separate from the home and could be used as a home-based business. It also features a double attached garage for the main home, and a lower-level single attached garage for the one-bedroom suite - making it a really attractive option for potential tenants OR for multigenerational family living. The kitchen in this home has been beautifully renovated, with quartz countertops, high-grade appliances, and a water tap above the gas stove. And lots of windows to take in the gorgeous lake views, including a pass-through window from the kitchen to the deck! The kitchen also features a sit-up bar island, a coffee station, and a work desk area with views. Spacious vaulted living room with a gas fireplace and more lake views! The main home has 4 bedrooms & 3 baths (also renovated), and the newly designed legal suite has 1 bed, 1 bath, with a full kitchen, laundry, and lounging space. Lots of parking on two separate driveways on this property, including RV parking. A tiered, partially fenced yard, with lovely rock wall accents, allowing for your creative landscaping ideas to make it home! Lots of patio space - with separated space for a tenant, plus a rooftop patio above the single garage - a great place to tan and enjoy the lake and valley views! 2 blocks from elementary school and 2 blocks from extensive trail system. Priced below assessed value! (id:6769)
Quick Stats
Key Home Data
4
BATH(S)
5
BED(S)
3188
SQFT
YES
SHOWING AVAILABLE
Property Type:
Single Family Home Ownership:
Freehold
Payment Calculator
Calculate your monthly mortgage payment.
Mortgage Amount
$
Amortization
years
Payment Freq.
Interest Rate
%
Calculating...
All About the Details
See specific details below.
Neighbourhood Statistics
Get to know your neighbourhood.


Royal LePage Kamloops Realty