1225 Copperhead Drive
Offered at: $998,500
MLS®: 10377905
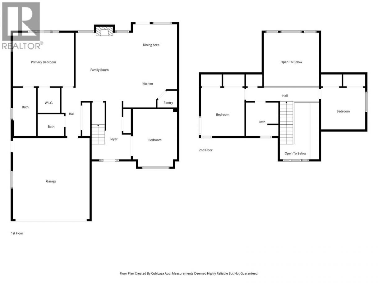
Welcome to 1225 Copperhead Drive. This 6-bedroom two storey home with a 2-bedroom in-law suite is in a highly sought after location in Dufferin backing onto Kenna Cartwright Park. Enter into the main floor of this home & you’ll immediately notice the impressive 17ft ceilings in the living room + large windows which bring in tons of natural light. The living room opens up to the kitchen & dining area which flows together effortlessly & is great for entertaining. The main floor has 2 bedrooms including a large primary bedroom with views of the park, 3pc ensuite bathroom, & walk in closet + there is an additional bedroom/office by the front door. The main floor also has a laundry room in the 2pc guest bathroom. The upper-level features 2 more bedrooms & a 4pc bathroom connected by a breezeway with great views of the outdoors. Outside the low-maintenance yard is a nature retreat at your own house. There is a large deck, great views of the park behind, & a gate that instantly connects you to the largest municipal park in BC. True privacy with no neighbours behind your house. Downstairs is a large 2-bedroom inlaw suite with separate entrance, full kitchen, 4pc bathroom, separate laundry, & large living room. Recent updates include new carpet on stairs (2026), hot water tank, main floor appliances, & basement suite reno(2024). Double garage, central vac, & an amazing location close to Dufferin Elementary, Costco, Aberdeen Mall, & all amenities. Book your showing today! (id:6769)
Quick Stats
Key Home Data
4
BATH(S)
6
BED(S)
3024
SQFT
YES
SHOWING AVAILABLE
Property Type:
Single Family Home Ownership:
Freehold
Payment Calculator
Calculate your monthly mortgage payment.
Mortgage Amount
$
Amortization
years
Payment Freq.
Interest Rate
%
Calculating...
All About the Details
See specific details below.
Neighbourhood Statistics
Get to know your neighbourhood.


Royal LePage Kamloops Realty