#163 4000 Trails Place
Offered at: $794,900
MLS®: 10376965
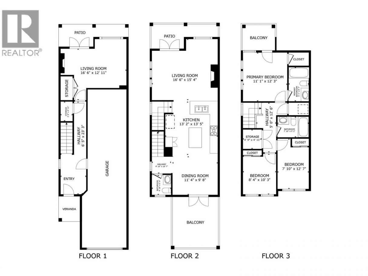
Welcome to The Trails! Backing onto Pincushion Mountain and steps from Hardy Falls and endless scenic trails, this location couples nature with convenience. An executive 9-hole golf course is approved next door, while Beach Avenue’s shops, restaurants, parks, marinas, wineries, and microbreweries are just minutes down the hill. This exceptional end unit presents like a show home. The craftsman exterior with Hardie board siding, rich wood and slate accents, and a stamped concrete entry sets the tone for the quality throughout. Inside, soaring ceilings and expansive windows flood the home with natural light, creating an open, airy atmosphere. The main living level is designed for entertaining, featuring a stunning white kitchen with upgraded cabinetry, quartz countertops, custom backsplash, premium appliances, and refined hardware. The living room is anchored by a cozy natural gas fireplace with a solid wood mantle and elegant shiplap detail. Two inviting covered decks on this level offer private views from both sides of the home. Upstairs offers 3 generous bedrooms and 2 full bathrooms, including a serene primary retreat with vaulted ceilings and transom windows. On the entry level, a large rec room with a 2nd fireplace opens directly to the patio — ideal for guests or seamless indoor-outdoor living. Phantom screens throughout, an oversized tandem garage with abundant storage for all your lifestyle gear, and the peace of mind of a FireSmart community. (id:6769)
Quick Stats
Key Home Data
3
BATH(S)
3
BED(S)
1565
SQFT
YES
SHOWING AVAILABLE
Property Type:
Single Family Home Ownership:
Strata
Payment Calculator
Calculate your monthly mortgage payment.
Mortgage Amount
$
Amortization
years
Payment Freq.
Interest Rate
%
Calculating...
All About the Details
See specific details below.
Neighbourhood Statistics
Get to know your neighbourhood.


Royal LePage Kamloops Realty