#9 2081 11 Avenue Northeast
Offered at: $454,900
MLS®: 10376479
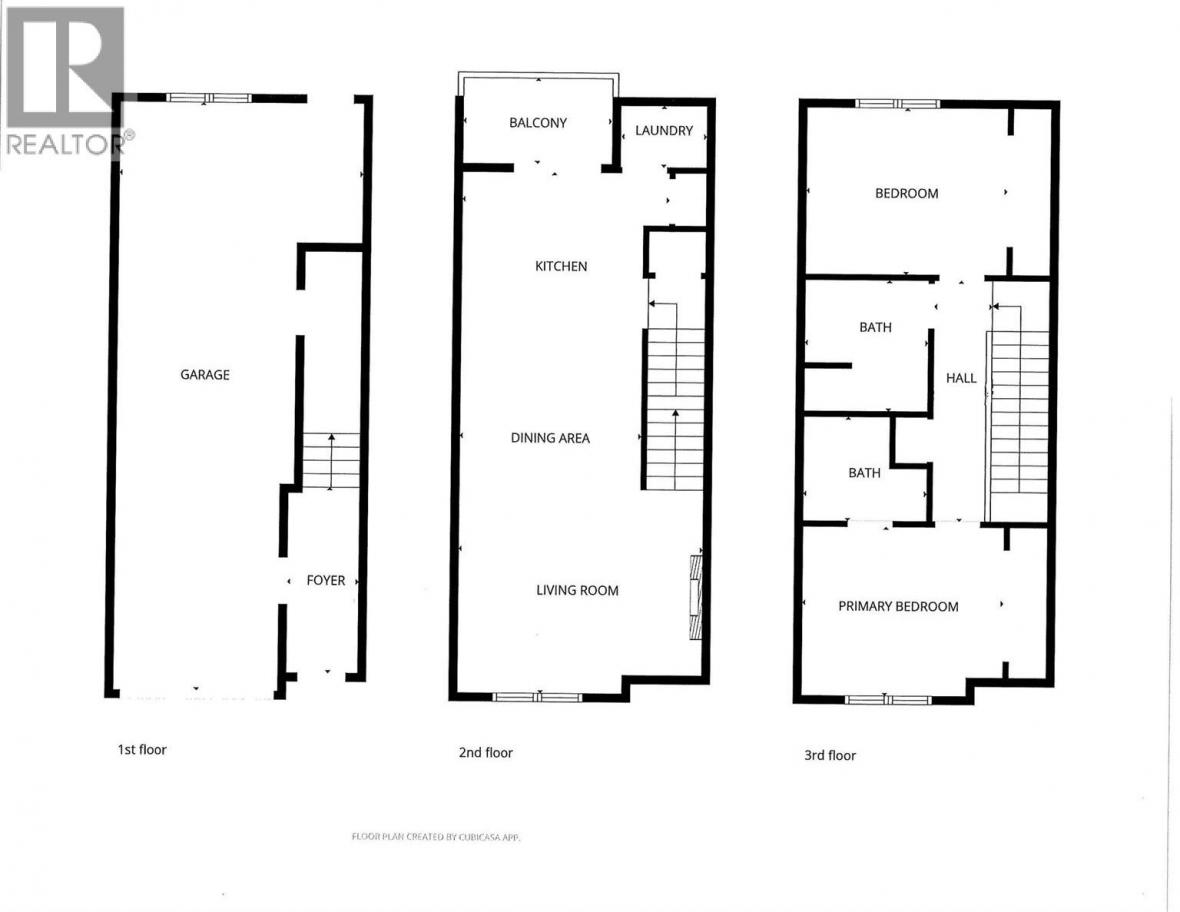
This well-designed 2 bedroom, 2 bathroom townhome, built in 2019, offers modern comfort in a sought after uptown location. The bright, open-concept main floor is designed for both comfort and functionality, featuring a spacious living room with an electric fireplace, a well-appointed kitchen with stainless steel appliances, peninsula seating, and pantry storage, plus easy deck access right off the kitchen—perfect for morning coffee or summer BBQs. A convenient main floor laundry room adds to the thoughtful layout. Upstairs, you’ll find two bedrooms and two full bathrooms, including a primary suite complete with its own 3-piece ensuite. The tandem double garage provides ample parking and extra storage space, making this home as practical as it is appealing. Move-in ready and ideally situated within walking distance to shops, dining, and services, this is low-maintenance living in a location that truly delivers. (id:6769)
Quick Stats
Key Home Data
2
BATH(S)
2
BED(S)
1125
SQFT
YES
SHOWING AVAILABLE
Property Type:
Single Family Home Ownership:
Strata
Payment Calculator
Calculate your monthly mortgage payment.
Mortgage Amount
$
Amortization
years
Payment Freq.
Interest Rate
%
Calculating...
All About the Details
See specific details below.
Neighbourhood Statistics
Get to know your neighbourhood.


Royal LePage Kamloops Realty