13 Wood Duck Way
Offered at: $689,000
MLS®: 10375554
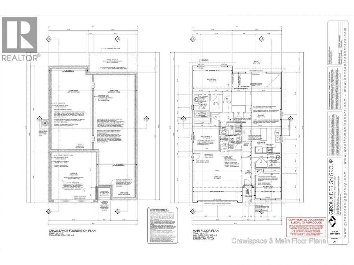
Impressive 3-bedroom rancher under construction in the desirable Meadowlark 2 Subdivision, offering mountain views and a central Osoyoos location. This thoughtfully designed single-level home features a double car garage and is located close to the golf course, high school, and walking and biking paths just one block away. Enjoy the freedom of no strata fees while being only 3 minutes to downtown Osoyoos, with shopping, dining, and amenities close at hand. An excellent opportunity to own a brand-new home in a quiet, well-planned neighbourhood. (id:6769)
Quick Stats
Key Home Data
3
BATH(S)
3
BED(S)
1487
SQFT
YES
SHOWING AVAILABLE
Property Type:
Single Family Home Ownership:
Freehold
Payment Calculator
Calculate your monthly mortgage payment.
Mortgage Amount
$
Amortization
years
Payment Freq.
Interest Rate
%
Calculating...
All About the Details
See specific details below.
Neighbourhood Statistics
Get to know your neighbourhood.


Royal LePage Kamloops Realty