3304 White Lake Road
Offered at: $899,999
MLS®: 10375250
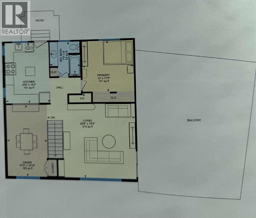
For more information, please click Brochure button. This rare 3+ acre lakeview property offers incredible space, flexibility, and panoramic views, consisting of two separately titled parcels (two PIDs). The main residence sits fully on one lot, while a 50’ x 28’ pole barn with lighting and 220 power is located on the second parcel. A shared driveway currently services the property, with space and future potential to add separate access, and both parcels back directly onto crown land. Each lot is just over 1.5 acres, both offering unobstructed lake views, mature trees providing endless firewood, and ample parking for trucks and trailers. The bright, open 3-bedroom, 2-bath home features new flooring, updated appliances, modern upgrades, and a new heat pump installed in 2024, along with a massive DuraDeck with a 10-year transferable warranty showcasing sweeping lake and forest views. Multiple fire pits and level outdoor entertaining areas make this an ideal retreat for hosting or relaxing. With super easy lake access and year-round recreation including fishing, quadding, sledding, hiking, and boating right from your doorstep, this property offers exceptional potential for resale, development, or multi-use ownership, subject to regional zoning and service requirements, all in a quiet and peaceful setting. All measurements are approximate. (id:6769)
Quick Stats
Key Home Data
2
BATH(S)
3
BED(S)
1640
SQFT
YES
SHOWING AVAILABLE
Property Type:
Single Family Home Ownership:
Freehold
Payment Calculator
Calculate your monthly mortgage payment.
Mortgage Amount
$
Amortization
years
Payment Freq.
Interest Rate
%
Calculating...
All About the Details
See specific details below.
Neighbourhood Statistics
Get to know your neighbourhood.


Royal LePage Kamloops Realty