#117 1393 9th Avenue
Offered at: $574,900
MLS®: 10365001
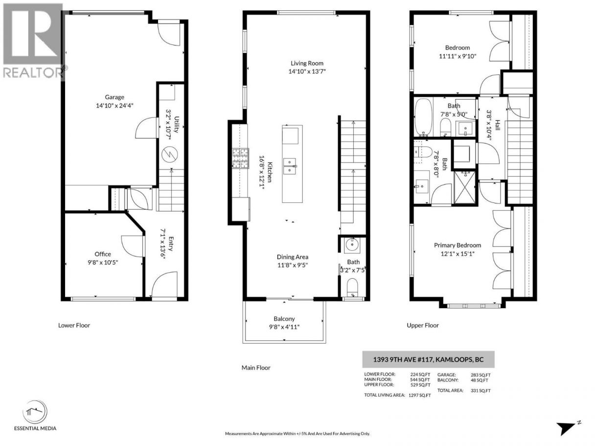
Welcome to The Walk — a modern, low-maintenance community just minutes from downtown Kamloops. This bright end unit stands out with extra windows and natural light that fills every corner. With 2 bedrooms, a den, and 3 bathrooms, this townhouse blends convenience, style, and function in all the right ways. The ground level offers a welcoming entry, a versatile den (perfect for your home office or to tackle your favourite home workout), and a spacious single garage. Upstairs, the open-concept main floor is made for entertaining — the sleek kitchen features quartz countertops, a huge island, and modern cabinetry that flows seamlessly into the living and dining areas. Step out onto your cozy deck — just the right size for your BBQ, a few herbs, or a comfy chair to unwind after work. Upstairs, you’ll find two bedrooms, a full bath, and laundry. The primary suite includes a large closet with custom built-in shelving and ensuite with a full tile shower. Bonus features include air conditioning, the remainder of the home warranty, and a second parking stall just steps away. Enjoy easy access to Peterson Creek Park, the Sagebrush Theatre, schools, and parks — everything you love about Kamloops living is right outside your door. Move in, explore, and start walking your way into a great new lifestyle at The Walk. (id:6769)
Quick Stats
Key Home Data
3
BATH(S)
2
BED(S)
1297
SQFT
YES
SHOWING AVAILABLE
Property Type:
Single Family Home Ownership:
Strata
Payment Calculator
Calculate your monthly mortgage payment.
Mortgage Amount
$
Amortization
years
Payment Freq.
Interest Rate
%
Calculating...
All About the Details
See specific details below.
Neighbourhood Statistics
Get to know your neighbourhood.


Royal LePage Kamloops Realty