138 Keno Way
Offered at: $2,200,000
MLS®: 17038
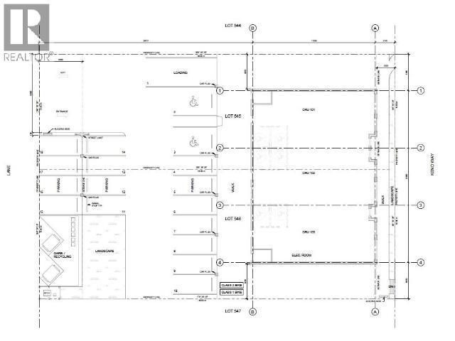
Brand new 4564 sq ft commercial building in up and coming Whistle Bend neighbourhood. Building is in excellent location and will soon be ready for fit up including polished concrete floors, metal roof, triple glazed windows, metal exterior with stone accents, can be separated into three units or used as wide open space. Call for details (id:6769)
Quick Stats
Key Home Data
0
BATH(S)
BED(S)
4564
SQFT
YES
SHOWING AVAILABLE
Property Type:
Other
Payment Calculator
Calculate your monthly mortgage payment.
Mortgage Amount
$
Amortization
years
Payment Freq.
Interest Rate
%
Calculating...
All About the Details
See specific details below.
Neighbourhood Statistics
Get to know your neighbourhood.


Royal LePage Kamloops Realty