632 Enzo Road
Offered at: $974,900
MLS®: 10373577
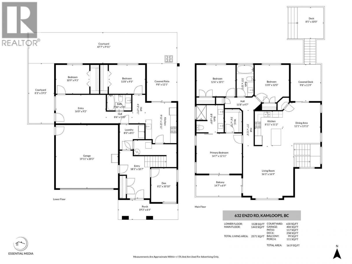
Welcome to this beautifully maintained two-story home in the highly desirable Westsyde area of Kamloops offering space, versatility, and comfort for the whole family. With 2571 sqft of living space, this home features five bedrooms, three bathrooms and a den, including a separate two bedroom basement suite ideal for extended family, and mortgage helper potential. The main level, showcases, gorgeous, hardwood floors, central A/C and a bright open layout. The kitchen is well appointed with stainless steel appliances a double oven and plenty of space for entertaining. Enjoy seamless indoor outdoor living with two patios on the upper floor perfect for relaxing or hosting guests. The large primary bedroom offers a private retreat complete with an ensuite featuring double sinks and a full-size shower additionally, bedrooms are generously sized, providing comfort and flexibility for family and guests. Downstairs the cozy basement suite boasts a walk-out covered patio and access to the fully fenced yard creating a private inviting space. Outside you’ll appreciate the double garage, RV/guest parking and secure yard perfect for kids pets and outdoor enjoyment this Westsyde gem combines functionality income potential and lifestyle appeal in a fantastic neighborhood, close to schools parks and amenities. (id:6769)
Quick Stats
Key Home Data
1
BATH(S)
5
BED(S)
2571
SQFT
YES
SHOWING AVAILABLE
Property Type:
Single Family Home Ownership:
Freehold
Payment Calculator
Calculate your monthly mortgage payment.
Mortgage Amount
$
Amortization
years
Payment Freq.
Interest Rate
%
Calculating...
All About the Details
See specific details below.
Neighbourhood Statistics
Get to know your neighbourhood.


Royal LePage Kamloops Realty