12 Bellerive
Offered at: $399,900
MLS®: NB132351
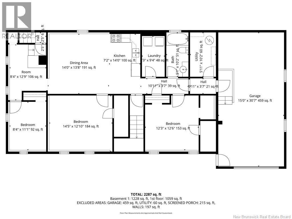
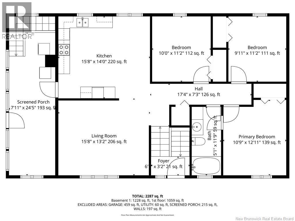
Welcome to 12 Bellerive in Trois Ruisseaux. This home with a basement apartment is sure to be in high demand! The main floor features 3 spacious bedrooms, a large kitchen and living room, a 3-piece bath, and an attached garage. The lower level offers 2 additional bedrooms, a huge kitchen and dining area, plus a generously sized living room. Sitting on a large lot, this property also boasts a nice workshop on the left-hand side. Enjoy beach access just minutes down the road. (id:6769)
Quick Stats
Key Home Data
2
BATH(S)
5
BED(S)
2287
SQFT
YES
SHOWING AVAILABLE
Property Type:
Single Family Home Ownership:
Freehold
Payment Calculator
Calculate your monthly mortgage payment.
Mortgage Amount
$
Amortization
years
Payment Freq.
Interest Rate
%
Calculating...
All About the Details
See specific details below.
Neighbourhood Statistics
Get to know your neighbourhood.


Royal LePage Kamloops Realty