#102 3320 Centennial Drive
Offered at: $375,000
MLS®: 10372086
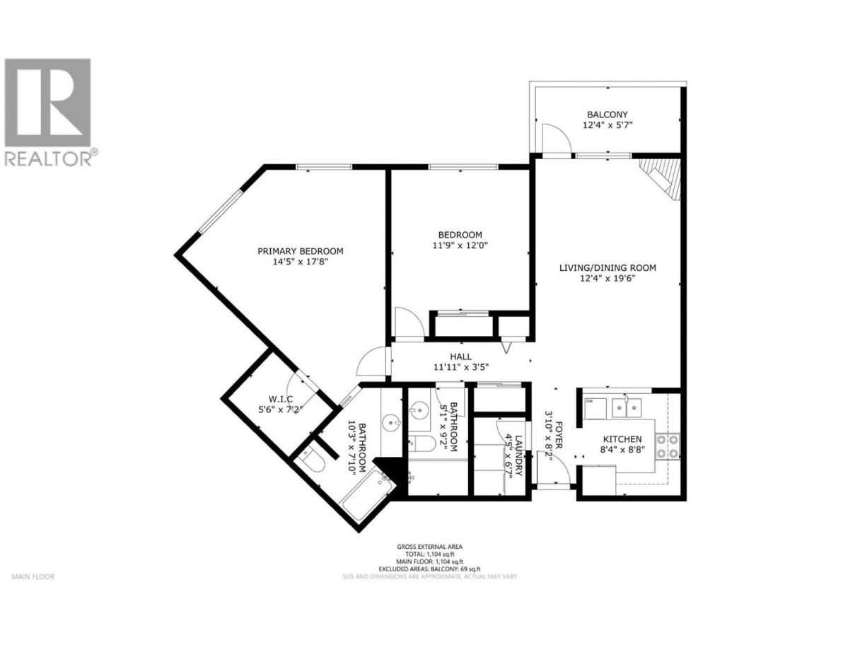
Welcome to Unit #102 at Imperial Ridge. With a fresh coat of paint, recently updated flooring, and a lovely kitchen, this 2-bedroom, 2-bathroom condo is truly move-in ready. The home is located in a well-maintained, all-ages building that has undergone extensive upgrades since 2022, including parkade improvements, building envelope work (windows, decks, stucco), a new elevator, and refreshed hallways with modern carpeting, lighting, and paint. Ideally located just steps from downtown Vernon’s shops, cafes, medical offices, and services, this quiet, south-facing home is filled with natural light and enjoys beautiful city views, with glimpses of Okanagan Lake. The spacious layout offers a modern kitchen with plenty of storage, opening into the dining area and comfortable living room. Enjoy the cozy gas fireplace on cooler days (natural gas included in the strata fee), and in summer relax on your private deck or stay cool with the newer wall-mounted A/C unit. The primary bedroom features a walk-in closet and full ensuite, while the second bedroom and full main bathroom provide flexibility for guests, a home office, or family. In-suite laundry with newer washer and dryer adds everyday convenience. Additional features include one secure underground parking stall, a storage locker, bike storage, and a common room. Strata fees include hot water, water, sewer, garbage, natural gas. Book your showing today! (id:6769)
Quick Stats
Key Home Data
2
BATH(S)
2
BED(S)
1104
SQFT
YES
SHOWING AVAILABLE
Property Type:
Single Family Home Ownership:
Strata
Payment Calculator
Calculate your monthly mortgage payment.
Mortgage Amount
$
Amortization
years
Payment Freq.
Interest Rate
%
Calculating...
All About the Details
See specific details below.
Neighbourhood Statistics
Get to know your neighbourhood.


Royal LePage Kamloops Realty