#2 222 Temple Street
Offered at: $529,000
MLS®: 10372813
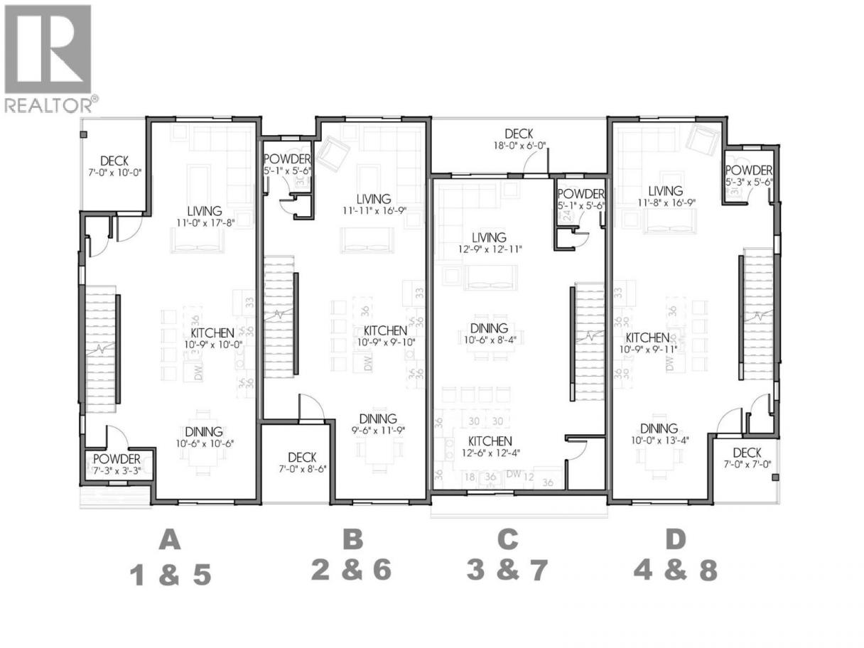
Welcome to #2 at MaraVista Sicamous. A thoughtfully designed 1,436 sq.ft. townhome that blends style, comfort, & functionality in one of Sicamous’ most exciting new developments. This is the one for Couples or Singles w/ 2 Primary Bedrooms & features an oversized garage w/an 8’ overhead door, measuring 39’ deep x 18’ wide—offering exceptional space for vehicles, storage, & all your recreational gear. Inside, you’ll find a welcoming entry w/ coat closet, leading upstairs to a bright, open-concept main floor with 9’ ceilings. Designed for entertaining, the layout offers a large eating bar, fireplace, dining area, powder room, & a 7’ x 8.5’ outdoor deck for fresh air & summer BBQs. Upstairs, the first primary bedroom is ideally positioned at the back of the home for privacy & quiet, complete w/ a full ensuite & an enhanced walk-in closet w/ impressive storage & organization potential. A second Primary bedroom also features its own ensuite, while a versatile den provides flexible space for an office or hobby room. Modern finishings include quartz countertops throughout, white cabinetry, black hardware, neutral vinyl plank flooring, + enhanced soundproofing. The exterior showcases Hardy Plank siding, energy-efficient windows, & high-efficiency mini-split A/C system for year-round comfort. Fully fenced yard. W/ only 5% down, Low strata fees at $356.11/m. A $5000 appliance credit is available for the first 4 units sold. OAC -low as 3.64% 3 year insured loan and cash back upto $4800. (id:6769)
Quick Stats
Key Home Data
3
BATH(S)
3
BED(S)
1463
SQFT
YES
SHOWING AVAILABLE
Property Type:
Single Family Home Ownership:
Strata
Payment Calculator
Calculate your monthly mortgage payment.
Mortgage Amount
$
Amortization
years
Payment Freq.
Interest Rate
%
Calculating...
All About the Details
See specific details below.
Neighbourhood Statistics
Get to know your neighbourhood.


Royal LePage Kamloops Realty