5884 Cherry Road
Offered at: $1,349,900
MLS®: 10371668
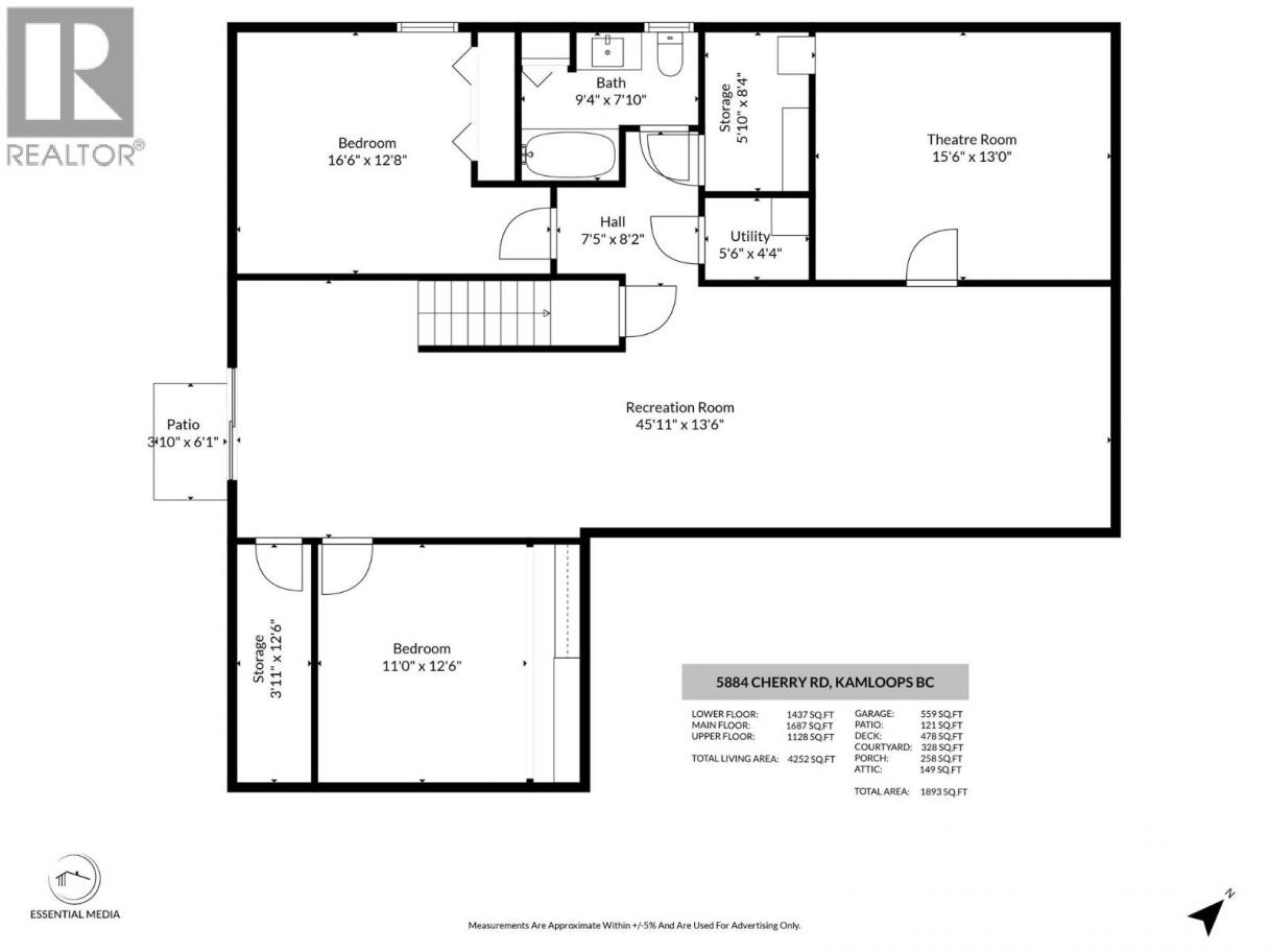
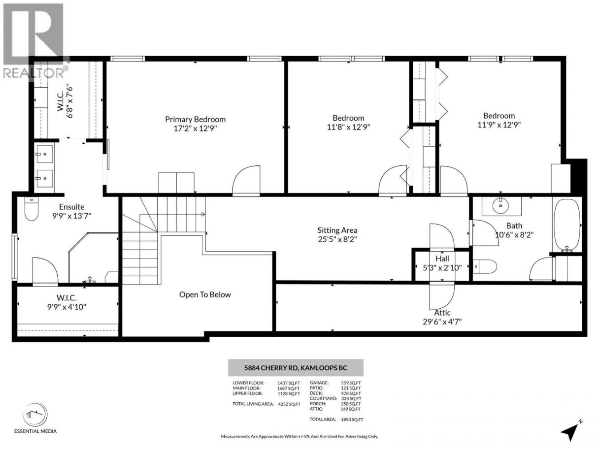
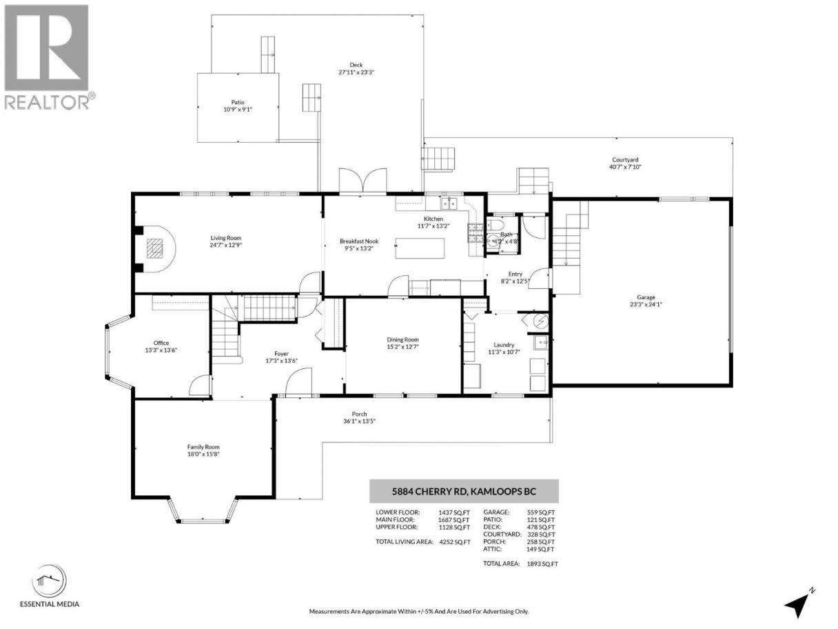
Imagine waking up to panoramic lake & valley views, embracing the best of rural living where farmhouse charm meets urban ammenities & the peace of mind of a professionally renovated estate. Welcome to 5884 Cherry Road—an exceptional 11.43-acre property featuring 2 renovated homes, rare natural gas service, a 50 GPM artesian well, shop, school bus pick up & weekly garbage & recycling pick up. The main residence spans over 4,750 sq.ft. Renovated from stud & designed to impress with 5 bedrooms + office, 4 bathrooms, 2 living rooms, 2 dining spaces, & recently finished walk-out basement with suite potential, soundproof media room & 200 amp service. The high-end kitchen boasts commercial-grade appliances, an oversized butcher block island, & a handmade hood vent. This renovation missed no detail; upstairs bathrooms offer heated floors, while the cedar-lined linen closet helps deter moths. Enjoy sunset views over Kamloops Lake from your new sundeck or unwind in the hot tub. Other updates not to be missed include garage, HE furnace, central vac, A/C, windows, siding, concrete subfloor, updated insulation & water system. The 2nd home is a cozy & updated two-level layout with 1 bedroom & loft, 1 recently renovated bathroom, & 100-amp service. A fully powered Quonset/shop with 100-amp service & helicopter landing pads offers even more possibilities. The property is fenced & cross-fenced with an electric gate, multiple pastures, & quality fencing designed for the smallest pet. (id:6769)
Quick Stats
Key Home Data
3
BATH(S)
5
BED(S)
4700
SQFT
YES
SHOWING AVAILABLE
Property Type:
Single Family Home Ownership:
Freehold
Payment Calculator
Calculate your monthly mortgage payment.
Mortgage Amount
$
Amortization
years
Payment Freq.
Interest Rate
%
Calculating...
All About the Details
See specific details below.
Neighbourhood Statistics
Get to know your neighbourhood.


Royal LePage Kamloops Realty