29 Lewes Boulevard
Offered at: $2,590,000
MLS®: 16217
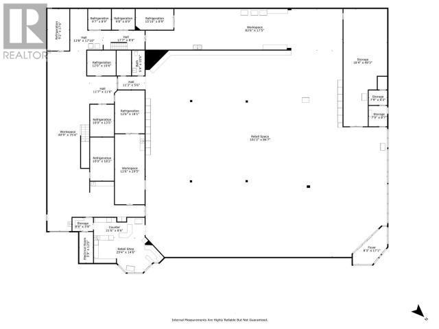
Unique & Attractive package with endless possibilities. 17,000 SqFt of retail, office, warehouse, storage and loading space on 1 acre lot. Location offers high visibility, an abundance of parking and CNC zoning. Recent upgrades: gas tanks, gas pumps, paved parking, roof totally re-surfaced, LED lighting, flooring, ceiling tiles, front wall partial replacement, new electrical in south wall and new fire-suppression system in deli area. High ceilings, 400-amp service, 2nd floor office space, and multiple entrances if building was split up for multiple tenants. Gas Bar portion to stay operational. Don't miss this rare offering! (id:6769)
Quick Stats
Key Home Data
0
BATH(S)
BED(S)
17000
SQFT
YES
SHOWING AVAILABLE
Property Type:
Retail
Payment Calculator
Calculate your monthly mortgage payment.
Mortgage Amount
$
Amortization
years
Payment Freq.
Interest Rate
%
Calculating...
All About the Details
See specific details below.
Neighbourhood Statistics
Get to know your neighbourhood.


Royal LePage Kamloops Realty