209 Summer Wood Drive
Offered at: $1,449,999
MLS®: 10371866
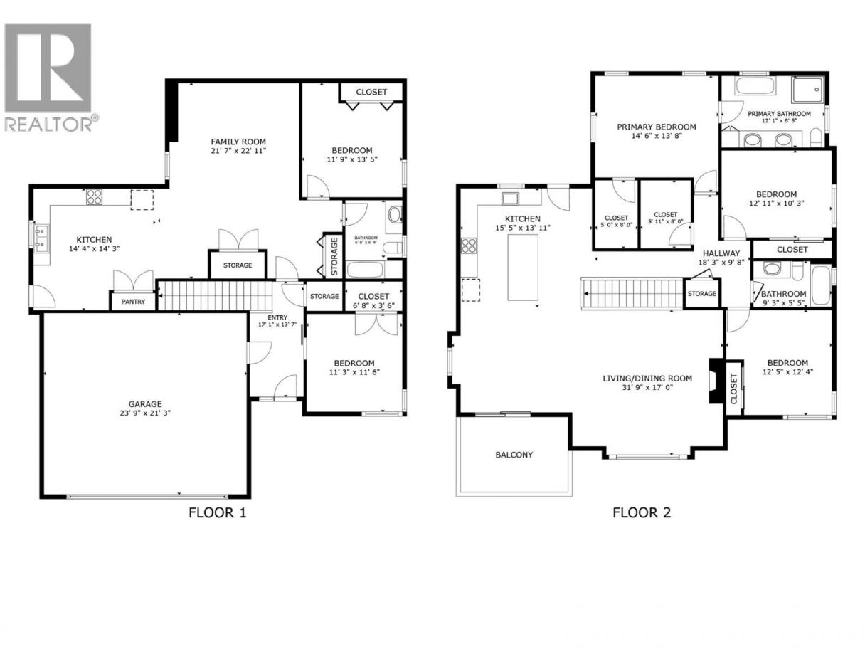
OPEN HOUSE SUNDAY MARCH 15, 1-3PM! This exceptional Step 4 energy-rated home in Wilden stands out for its superior build quality, thoughtful design, and high-performance features. The main level offers 3 bedrooms and 2 bathrooms plus direct access to the fully fenced backyard from the main living area. This design allows you to keep an eye on kids and pets without going downstairs and ensuring the main yard remains private and not needed to be shared with your tenant. The lower level includes a flexible bonus room along with a spacious 1-bedroom legal suite with a separate entrance providing excellent versatility. Inside, 9-ft ceilings on both levels create a bright, open feel, complemented by large windows, wide-plank white oak hardwood flooring, high end cabinetry and appliances, waterfall countertops, and a striking gas fireplace. The primary ensuite features heated floors, a walk-in shower, double vanity, and a freestanding tub. Built for modern living, the home includes a dual-fuel heating system, HRV system, and EV + hot-tub wiring. Additional highlights include epoxy decking, and a large exterior storage area, allowing the oversized garage to be used for actual vehicle parking. Outdoor spaces include a covered deck, expansive patio with built-in fire pit, and a private front balcony—ideal for entertaining or enjoying the Okanagan lifestyle. A rare combination of efficiency, functionality, and elevated finishes in one of Wilden’s most sought-after neighbourhoods. (id:6769)
Quick Stats
Key Home Data
3
BATH(S)
4
BED(S)
2921
SQFT
YES
SHOWING AVAILABLE
Property Type:
Single Family Home Ownership:
Freehold
Payment Calculator
Calculate your monthly mortgage payment.
Mortgage Amount
$
Amortization
years
Payment Freq.
Interest Rate
%
Calculating...
All About the Details
See specific details below.
Neighbourhood Statistics
Get to know your neighbourhood.


Royal LePage Kamloops Realty