2064 Saddleback Drive
Offered at: $949,900
MLS®: 10368975
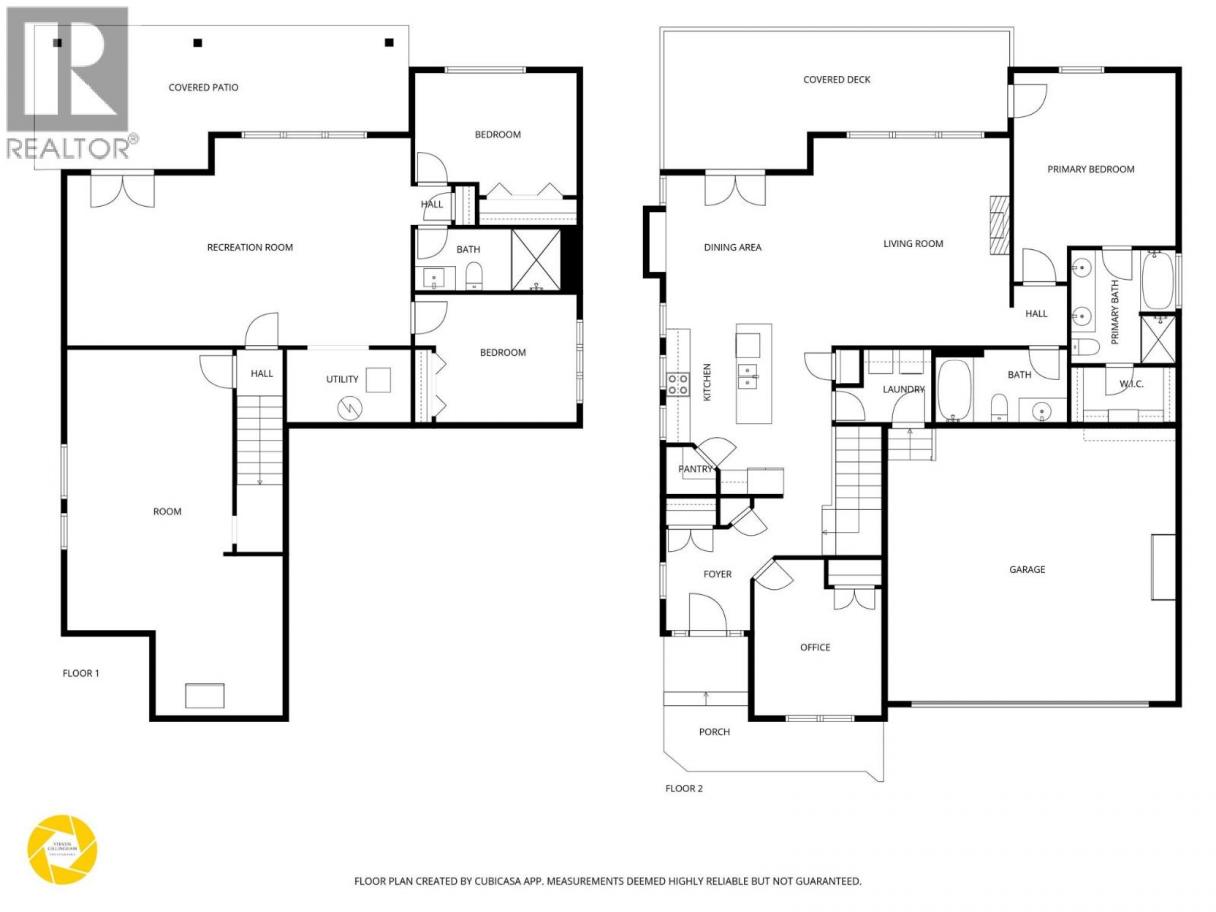
Amazing 4-bedroom, 3-bathroom home in desirable Batchelor Heights! This home was built in 2017 but shows like it's brand new, this true rancher layout offers modern living with the perfect blend of style and functionality. The bright open-concept main floor features stunning mountain and river view; your new favourite coffee spot will be the back deck! The spotless kitchen with Quartz countertops has a pantry for all your storage needs plus an island with room for bar seating. Enjoy the comfort of a gas fireplace in the cold winter months in the spacious and bright living room. Downstairs, enjoy a spacious rec room plus a fully finished area with a 2 bedroom suite potential. The lower level is already set up with electrical, plugs, and laundry wiring and venting, just add a kitchen and laundry/water hookups in the utility room to create a 2-bedroom suite (with City of Kamloops approval) with soundproofing in the ceiling. The main floor has a full rec room in the basement outside of the potential suite. Alternatively you can keep the layout as is and it's a perfect family home with a second living room in the basement. Additional features include underground irrigation, Waterdrop filtration system and energy-efficient LED lighting throughout for bright, hassle-free living. Meticulously maintained this home offers incredible versatility and value in one of Kamloops’ most sought-after neighbourhoods. Don’t miss your chance to make it yours, book your private showing today! (id:6769)
Quick Stats
Key Home Data
3
BATH(S)
4
BED(S)
3012
SQFT
YES
SHOWING AVAILABLE
Property Type:
Single Family Home Ownership:
Freehold
Payment Calculator
Calculate your monthly mortgage payment.
Mortgage Amount
$
Amortization
years
Payment Freq.
Interest Rate
%
Calculating...
All About the Details
See specific details below.
Neighbourhood Statistics
Get to know your neighbourhood.


Royal LePage Kamloops Realty